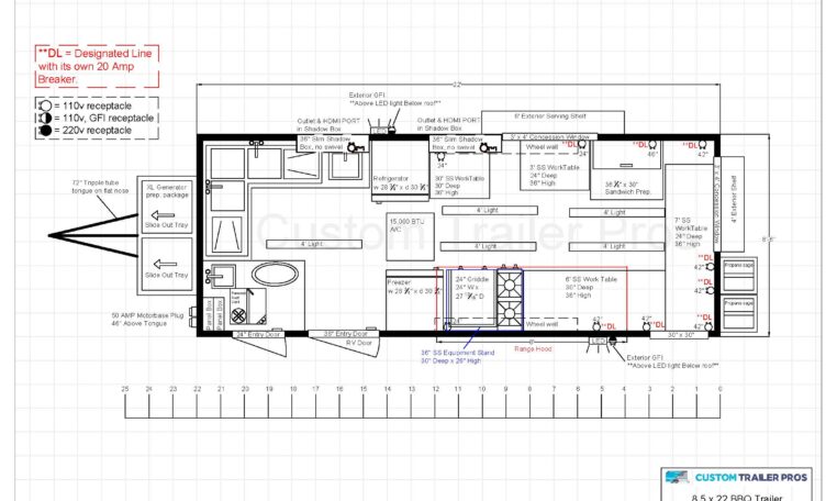
8.5x22 Equipped Food Trailer

8.5X22HSF142

$76,995

CustomizeTrailer Virtual Tour

  • Silver Frost
  • .030 Exterior Aluminum Thickness
  • XL Generator Box with Slide-Out Tray
  • 8″ Heavy Duty Main Frame
  • 60″ Triple Tube Tongue
  • (2) Propane Cage(s) for 100lb Bottle
  • 5200lb Leaf Spring Axles w/ EB & Triple Tube Tongue
  • (1) 3×6 Concession Window
  • (1) 3×4 Concession Window
  • 30″x30″ RV Window
  • (2) Shadow Boxes
  • (2) Pair Scissor Jacks
  • 7’6″ Interior Height
  • Mill Finish – Stainless Aluminum
  • Rubber Coin Floor
  • 36″ RV Side Door
  • Stainless Steel Tables
  • 1/2 Bath Package with toilet and Sink

**Fire Suppression System included**

  • Additional electrical outlets
  • Additional interior height
  • Any exterior color at no additional cost
  • Black-Out Trim Package
  • Electric Awning
  • Fire suppression system
  • Flood lights
  • Generator
  • Hundreds of pieces of cooking equipment
  • Many more options available
  • Nationwide Delivery
  • Scissor Jacks
  • Spare tire
  • Storage Cabinets

PERSONAL BANK
• Personal relationships
• Competitive rates
• Borrow against assets
• Lower cost loans
• Many loan structures possible
• Commercial leases
• Potential tax benefits
• Lease to own
• Easy application
• No set maximums

Did you know your custom-built food trailer can be pre-approved by your health department before construction even begins? Are you aware the fire marshal will also need to approve your trailer? That’s why Custom Trailer Pros works with each one of our customers to provide floor plans, spec sheets and any other requested details needed for the plans to be pre-approved. Although pre-approval does not guarantee a trailer will be passed when an inspector goes through it in person, it dramatically improves this likelihood. This process also helps our customers establish good relationships with their local agencies. The sooner you can pass these inspections, the sooner you can start making money.

CONCESSION FEATURES:

Range Hood Size: 8'
Griddle Size: 24"
Range Type: 2-Burner Countertop
Warming: No
Reach in Fridge: 22 Cu Ft
Reach in Freezer: 22 Cu Ft
Refrigerated Prep Table: 36" Sandwich Prep Table
Gas Lines: Yes
Serving Window: (2) 3x4 (with Glass and Screens)
Plumbing: 3 sink package + hand washing station
Electrical: (2) Full Electrical Packages
Air Conditioning: 15,000 BTU Air Conditioner with Heat Strip

Financing Calculator

Cost of Vehicle ($):
Down Payment ($):
Annual Interest Rate (%):
Term of Loan in Years:
Frequency of Payments:
Calculate My Payment
NUMBER OF PAYMENTS: 60
PAYMENT AMOUNT: $ 89.11

Test

Back to top